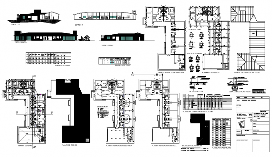
Detail office building elevation, plan and section 2d view dwg file
Description
Detail office building elevation, plan and section 2d view dwg file, plan view detail, wall and flooring detail, dimension detail, section line detail, furniture detail, sanitary toilet detail, specification detail, door and window detail, specification detail, legend detail, reinforcement detail in tension and compression zone, cut out detail, RCC structure, terrace plan detail, column detail, section detail, etc.
Uploaded by:
Eiz
Luna

